Cardiff Bay Opera House, Wales, UK
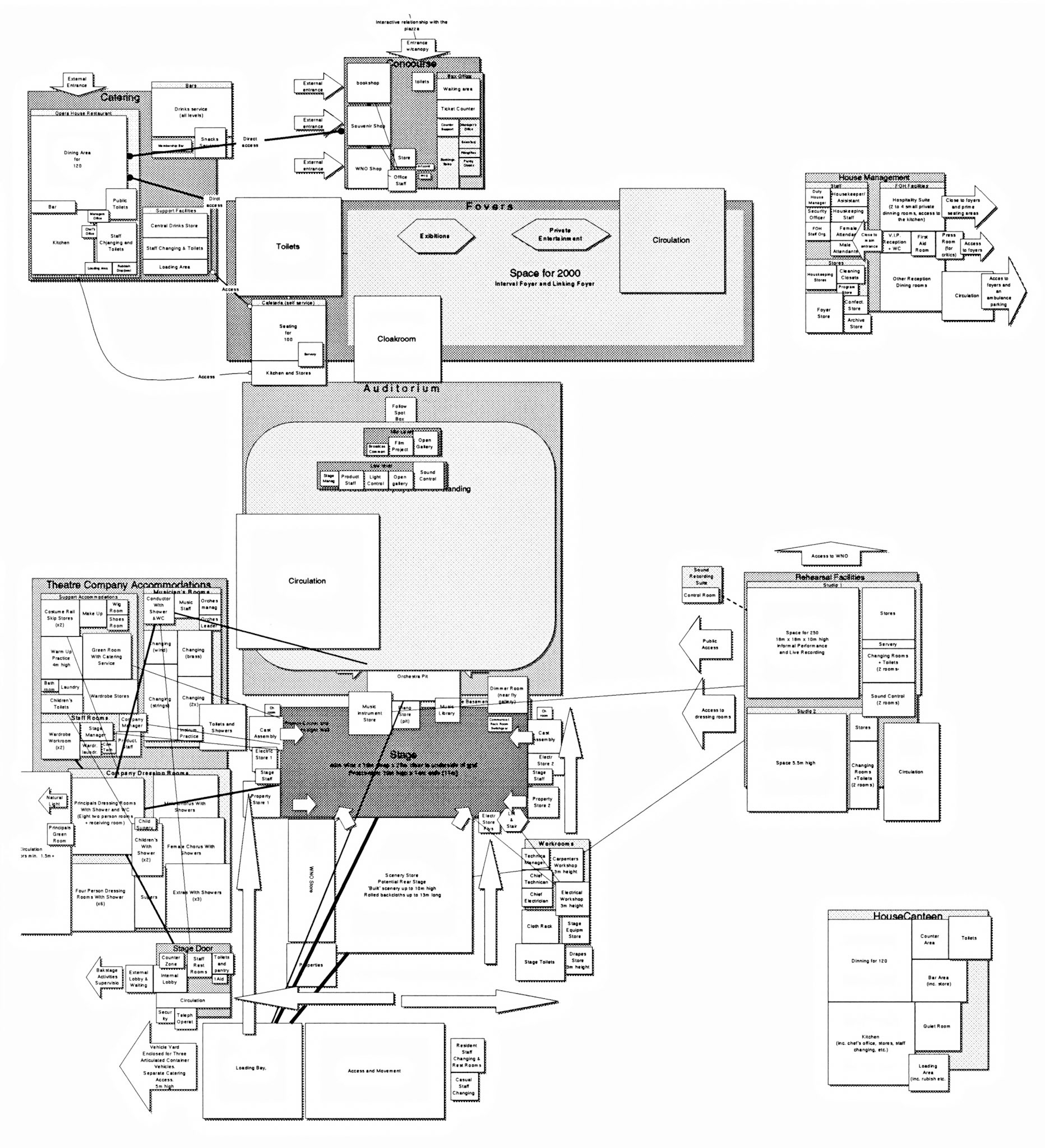
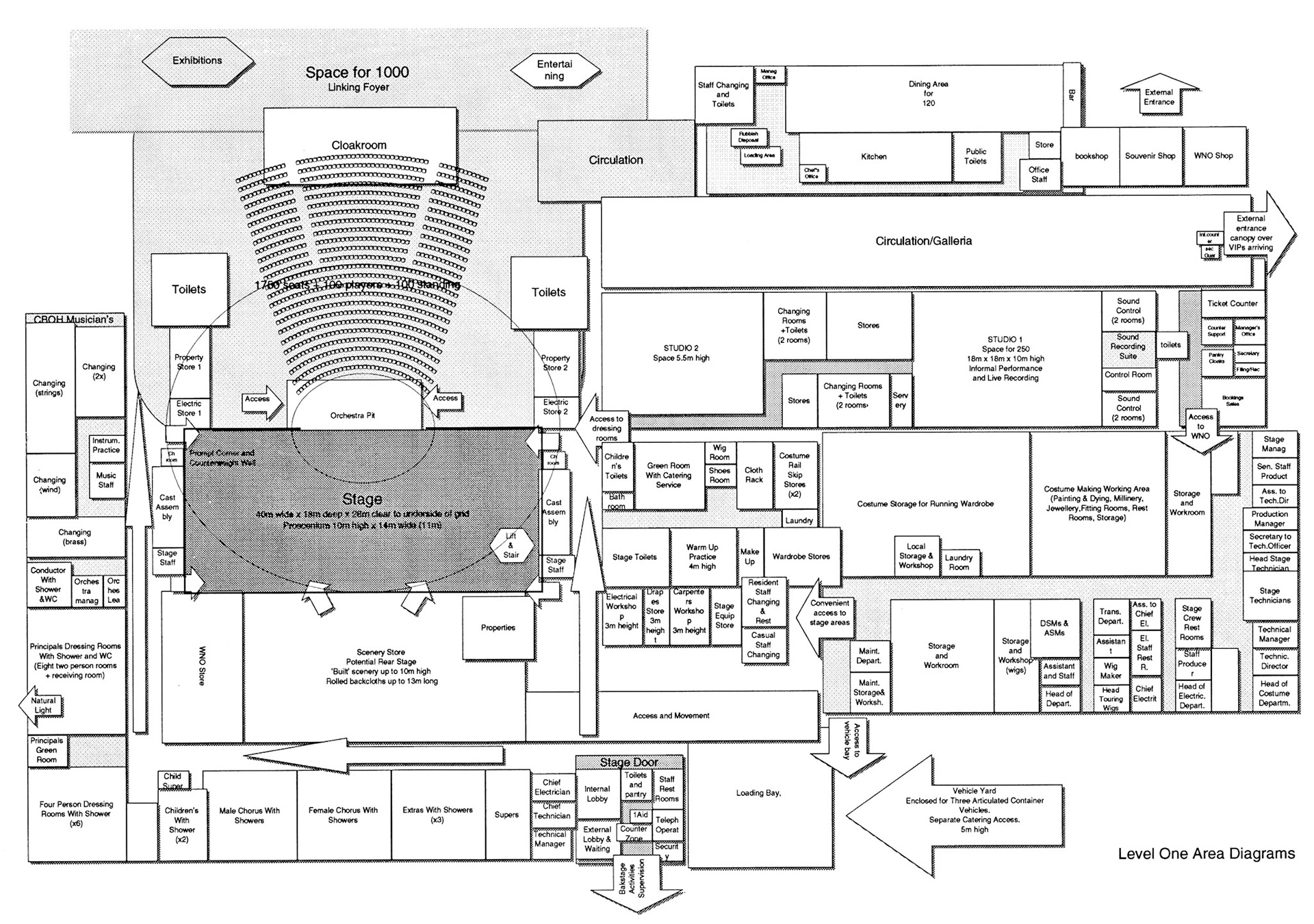
The program for the opera house competition presented two essential requirements: a very complex functional program typical of such an institution and a demanding urban context requiring a statement in the grand opera tradition. The proposed design reflects this dichotomy through an honest expression of architectural forms. The back-of-the-house's industrial simplicity contrasts with the main theater's monumental structure. Its foyers follow the bowed surface of the main auditorium and are framed with carillon towers. The expression is simultaneously futuristic and historical. On the urban scale, through music performances by the carillon bells, the impact of the opera house is extended toward the plaza and the city center. The long skylit Galleria has a more intimate scale and provides indoor space for shops and restaurants as well as a foyer for the smaller theatre venues. Designed at Collins & Knezevic LTD, Aki Z Knezevic AIA, Design Principal, Mary M Collins AIA, Managing Principal